SIGN UP CUSTOMER LOGIN
Main Photo

6 Total Photos [Click to View All]

Main Photo
Main Photo

Lot 1 Ryann Road Huntley, IL 60142

$524,900
Active / MLS# 12472913 / Residential - Single Family / Huntley
3 Beds
2 Baths
1 Half Bath
2030 SqFt

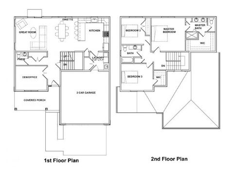
Welcome to Stillwell Grove, Huntley's newest enclave of just 41 homesites-perfect for buyers who prefer the privacy of a smaller community over a large subdivision. Ideally situated near the vibrant Rt 47 corridor, shopping, dining, and conveniences are right at your doorstep. Welcome to the ASPEN, this new construction two story home features a spacious covered front porch, an open-concept main floor with seamless flow between living, dining, and kitchen areas, plus a cozy den for work or relaxation. A convenient powder room and laundry center complete the first floor. Upstairs, three generously sized bedrooms include a luxurious primary suite with dual sinks, a walk-in shower, and a walk-in closet, while two additional bedrooms share a stylish hall bath. With a FULL BASEMENT and 2-car garage, this home combines thoughtful design and comfortable living. This neighborhood is not age-restricted and provides the ease of lawn care and snow removal included-true low-maintenance living at its best! Choose from thoughtfully designed ranches and 2-story homes, each featuring inviting covered front porches that set the stage for warm welcomes and outdoor relaxation. Serviced by the highly rated Huntley School District 158 and right near the booming Rt. 47 corridor-putting shopping, dining, and conveniences just steps from your door. Taking presale reservations now-be a part of Huntley's newest community: Stillwell Grove! Location notes: I-90 to Route 47 North to Powers Rd (By the Culvers) East to Samantha Lane to Development at corner of Samantha and Ryann

Read More » Read Less »

Baird & Warner Jeffrey Schwartz Email

Mortgage Calculator

%
years/fixed
yearly
yearly (est.)
yearly
(Payments are an estimate and may vary by lender)

Estimated Payment

$ 1,494.54 per month $1,166.44 Principal & Interest $0.00 Property Tax (data not provided by mls) $153.10 Homeowner's Insurance $175 HOA Fee
Get your competitive financing options.

Property Details

Property Type: Residential - Single Family
Basement: Yes
Basement: Unfinished, Full
Cooling: Central Air
Garage: 2
Heating: Natural Gas, Forced Air
Home Style: Contemporary, Ranch
Lot Size: 0.20 Acres
Roof Type: Asphalt
Year Built: 2026

Amenities

Walk-In Closet(s)

Feature Descriptions

Additional rooms: Foyer, Den
Appliances: Range, Microwave, Dishwasher, Disposal
Association Includes: Lawn Care, Snow Removal
Bath Features: Double Sink
Dining Room: Combined w/ LivRm
Exterior: Vinyl Siding, Brick
HOA Fee: 175/ Monthly
Laundry: Main Level, Gas Dryer Hookup
Lot: Corner Lot
Lot Dimensions: 75X118
Parcel#: 0204330001
Parking: Asphalt, Garage Door Opener, Yes, Garage Owned, Attached, Garage
Sewer: Public Sewer
Total Rooms: 7
Township: Rutland
Water: Public

Room Information

Foyer: 8X6
Den: 13X10
Bedroom 2: 12X11
Bedroom 3: 13X11
Dining Room: 14X11
Kitchen: 12X8
Laundry: 8X7
Living Room: 14X13
Primary Bedroom: 14X14

Schools

High School: Huntley High School
Middle School: Heineman Middle School
Elementary School: Mackeben Elementary School
School District: District 158

Disclaimer: The accuracy of all information regardless of source, including but not limited to square footage and lot size, is deemed reliable but not guaranteed nor warranted and should be personally verified through personal inspection by and/or with the appropriate professionals.

Location

See details and scored characteristics about this location.

Listing Office: Premier Living Properties

Listing Office Phone: 630-377-1646



Listing data and photos distributed by MLSGRID
Member Participants (and their affiliated licensees, if applicable) shall indicate on their websites that IDX information is provided exclusively for consumers’ personal non-commercial use, that it may not be used for any purpose other than to identify prospective properties consumers may be interested in purchasing, that the data is deemed reliable but is not guaranteed by MLS GRID, and that the use of the MLS GRID Data may be subject to an end user license agreement prescribed by the Member Participant’s applicable MLS if any and as amended from time to time. MLS GRID may, at its discretion, require use of other disclaimers as necessary to protect Member Participant, and/or their MLS from liability.
Based on information submitted to the MLS GRID. All data is obtained from various sources and may not have been verified by broker or MLS GRID. Supplied Open House Information is subject to change without notice. All information should be independently reviewed and verified for accuracy. Properties may or may not be listed by the office/agent presenting the information.


Login to my Baird & Warner account

Pixel