SIGN UP CUSTOMER LOGIN
Main Photo

12 Total Photos [Click to View All]

Main Photo
Main Photo

971 Windsor Road Highland Park, IL 60035

$399,000
Pending / MLS# 12550718 / Residential - Single Family / Highland Park
3 Beds
2 Baths
1373 SqFt

This is a Jewel box waiting for you finishing touches. Check out the trim, oversized and crown molding. Primary bedroom with walk-in closet, Fireplace with marble surround, full bath with granite countertops, and walk in shower. The siding is Hardy Board. The garage 21'+ x 25' with a full staircase to a finished second floor Heated! Has been used as an office but could be a studio. playroom for kids or very nice storage room. Fenced in big yard with large deck off the back of the house.

Read More » Read Less »

Baird & Warner Jeffrey Schwartz Email

Mortgage Calculator

%
years/fixed
yearly
yearly (est.)
(Payments are an estimate and may vary by lender)

Estimated Payment

$ 1,702.79 per month $886.67 Principal & Interest $699.75 Property Tax $116.38 Homeowner's Insurance
Get your competitive financing options.

Property Details

Property Type: Residential - Single Family
Basement: Yes
Basement: Unfinished, Partial
Cooling: Central Air
Fireplaces: 1
Garage: 2
Heating: Natural Gas
Home Style: Ranch
Lot Size: 0.17 Acres
Roof Type: Asphalt
Taxes: $8,397
Year Built: 1952

Amenities

Vaulted Ceiling(s)
1st Floor Full Bath
Granite Counters
Pantry

Feature Descriptions

Additional rooms: Bonus Room, Foyer
Additional Structures: Other, Garage(s), See Remarks
Appliances: Microwave, Dishwasher, Refrigerator, Cooktop, Oven, Range Hood, Gas Cooktop, Electric Oven
Association Includes: None
Bath Features: Separate Shower, Accessible Shower, Double Sink
Dining Room: Separate
Exterior: Vinyl Siding, Other
Fireplace: Wood Burning
Fireplace Location(s): Master Bedroom
Laundry: Main Level, Common Area
Lot Dimensions: 150 x 50
Parcel#: 16273060440000
Parking: Asphalt, Heated Garage, Yes, Garage Owned, Detached, Garage
Sewer: Public Sewer
Total Rooms: 7
Township: Moraine
Water: Lake Michigan, Public

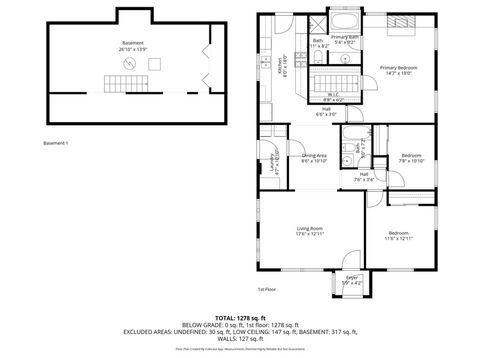
Room Information

Foyer: 5X5
Bonus Room: 20X20
Bedroom 2: 8X11
Bedroom 3: 8X10
Dining Room: 8X11
Kitchen: 8X17
Laundry: 10X5
Living Room: 13X17
Primary Bedroom: 15X17

Schools

High School: Highland Park High School
Middle School: Alan B Shepard Middle School
Elementary School: Kipling Elementary School
School District: District 113

Disclaimer: The accuracy of all information regardless of source, including but not limited to square footage and lot size, is deemed reliable but not guaranteed nor warranted and should be personally verified through personal inspection by and/or with the appropriate professionals.

Location

See details and scored characteristics about this location.

Listing Office: James Clark

Listing Office Phone: 847-826-4463



Listing data and photos distributed by MLSGRID
Member Participants (and their affiliated licensees, if applicable) shall indicate on their websites that IDX information is provided exclusively for consumers’ personal non-commercial use, that it may not be used for any purpose other than to identify prospective properties consumers may be interested in purchasing, that the data is deemed reliable but is not guaranteed by MLS GRID, and that the use of the MLS GRID Data may be subject to an end user license agreement prescribed by the Member Participant’s applicable MLS if any and as amended from time to time. MLS GRID may, at its discretion, require use of other disclaimers as necessary to protect Member Participant, and/or their MLS from liability.
Based on information submitted to the MLS GRID. All data is obtained from various sources and may not have been verified by broker or MLS GRID. Supplied Open House Information is subject to change without notice. All information should be independently reviewed and verified for accuracy. Properties may or may not be listed by the office/agent presenting the information.


Login to my Baird & Warner account

Pixel