SIGN UP CUSTOMER LOGIN
Main Photo

1 Total Photos [Click to View All]

Main Photo
Main Photo

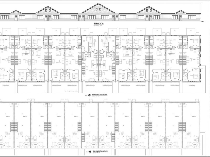
8400 W 87th Street, Unit C Hickory Hills, IL 60457

$399,900
Active / MLS# 12569124 / Residential - Townhouse / Hickory Hills
2 Beds
2 Baths
1100 SqFt

New Proposed construction in Hickory Hills to be built. Exceptional single level ranch home with an open concept layout that seamlessly connects the kitchen, dining and living areas. 2 spacious bedrooms and 2 full bathrooms with main level laundry. The unfinished basement with 8 ft ceilings has roughed in plumbing for an additional bathroom and laundry. Also included is a 2 car detached garage. Generous standards include an appliance and light fixture package. The ranch townhome includes 9 ft ceilings, granite counter tops and Tankless HWH. Contact the listing agent to set an appointment with the builder for more information. There are different floor plan options to choose from.

Read More » Read Less »

Baird & Warner Jeffrey Schwartz Email

Mortgage Calculator

%
years/fixed
yearly
yearly (est.)
yearly
(Payments are an estimate and may vary by lender)

Estimated Payment

$ 1,105.30 per month $888.67 Principal & Interest $0.00 Property Tax (data not provided by mls) $116.64 Homeowner's Insurance $100 HOA Fee
Get your competitive financing options.

Property Details

Property Type: Residential - Townhouse
Basement: Unfinished, Full
Basement: Yes
Cooling: Central Air
Garage: 2
Heating: Natural Gas, Forced Air
Lot Size: 11,250
Roof Type: Asphalt
Stories: 1.0
Year Built: 2026

Amenities

1st Floor Bedroom
1st Floor Full Bath
Walk-In Closet(s)
High Ceilings

Feature Descriptions

Additional rooms: No additional rooms
Association Includes: Insurance, Exterior Maintenance, Lawn Care, Snow Removal
Exterior: Brick, Other
HOA Fee: 100/ Monthly
Laundry: Main Level, Gas Dryer Hookup, Electric Dryer Hookup, In Unit
Lot Dimensions: 11250
Parcel#: 18353090360000
Parking: Yes, Detached, Garage
Pet Allowed: Cats OK, Dogs OK
Sewer: Public Sewer
Total Rooms: 4
Township: Lyons
Water: Lake Michigan

Room Information

Bedroom 2: 13X10
Kitchen: 10X9
Laundry: 4X4
Living Room: 17X15
Primary Bedroom: 14X12

Schools

High School: Argo Community High School
School District: District 217

Disclaimer: The accuracy of all information regardless of source, including but not limited to square footage and lot size, is deemed reliable but not guaranteed nor warranted and should be personally verified through personal inspection by and/or with the appropriate professionals.

Location

See details and scored characteristics about this location.

Listing Office: RE/MAX 10

Listing Office Phone: 708-857-1500



Listing data and photos distributed by MLSGRID
Member Participants (and their affiliated licensees, if applicable) shall indicate on their websites that IDX information is provided exclusively for consumers’ personal non-commercial use, that it may not be used for any purpose other than to identify prospective properties consumers may be interested in purchasing, that the data is deemed reliable but is not guaranteed by MLS GRID, and that the use of the MLS GRID Data may be subject to an end user license agreement prescribed by the Member Participant’s applicable MLS if any and as amended from time to time. MLS GRID may, at its discretion, require use of other disclaimers as necessary to protect Member Participant, and/or their MLS from liability.
Based on information submitted to the MLS GRID. All data is obtained from various sources and may not have been verified by broker or MLS GRID. Supplied Open House Information is subject to change without notice. All information should be independently reviewed and verified for accuracy. Properties may or may not be listed by the office/agent presenting the information.


Login to my Baird & Warner account

Pixel