SIGN UP CUSTOMER LOGIN
Main Photo

14 Total Photos [Click to View All]

Main Photo
Main Photo

6 Waterside Way Ottawa, IL 61350

$749,000
Active / MLS# 12328277 / Residential - Single Family / Ottawa
3 Beds
2 Baths
1 Half Bath
2402 SqFt

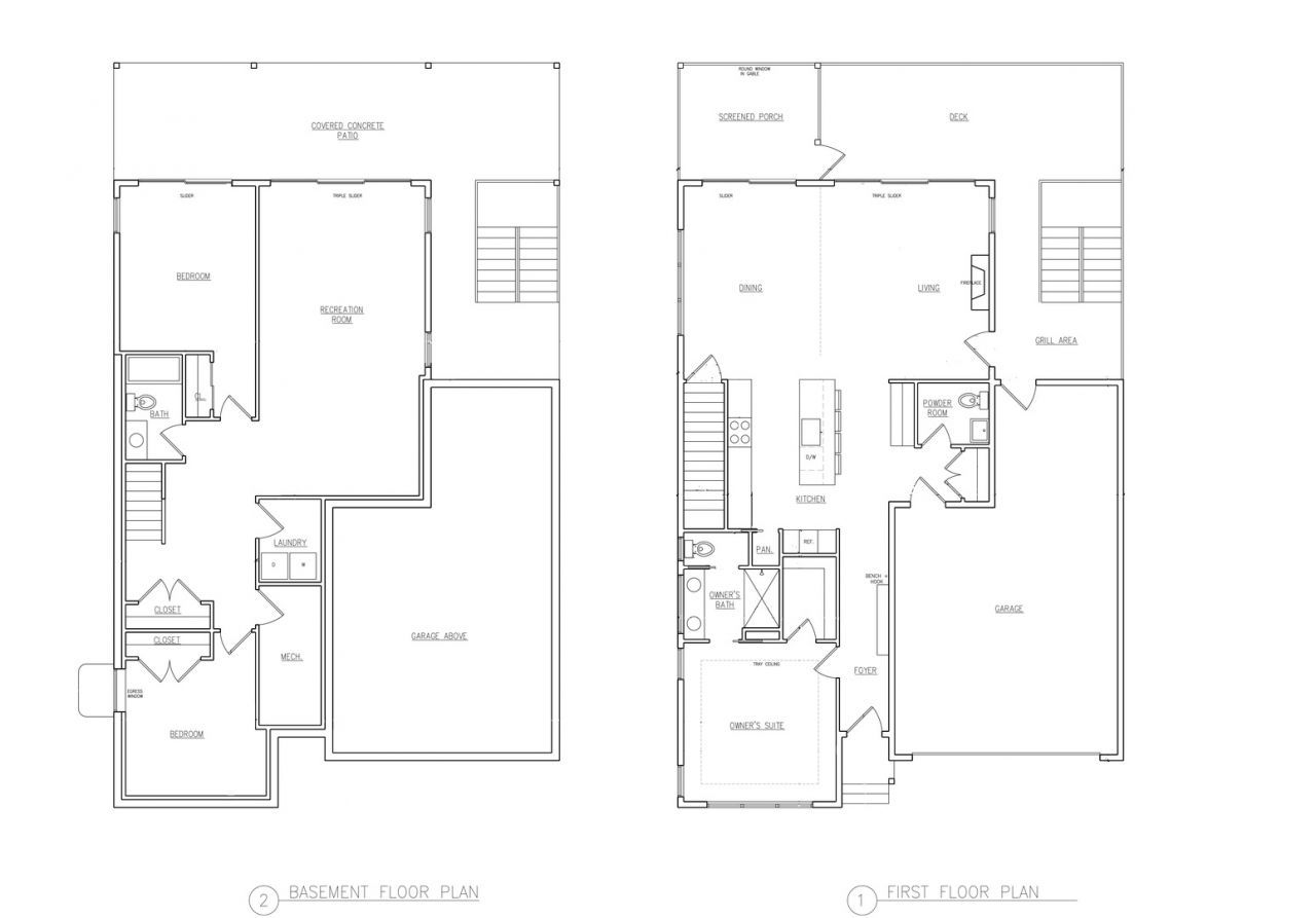
PROPOSED NEW CONSTRUCTION: Experience waterfront luxury with this proposed new construction home in an established neighborhood at Heritage Harbor Resort, in Ottawa, IL. Designed for both elegance and functionality, this home features a walk-out basement and is just steps from the docks, offering unparalleled access to the Illinois River. Built with 2x6 exterior walls for superior insulation and durability, the home showcases LP Smart Siding for a timeless yet low-maintenance exterior. A charming cupola adds architectural character, while the 9' ceilings on the first floor and 9' walk-out basement create a spacious, open feel throughout. The thoughtfully designed floor plan includes a first-floor master suite, complete with a spa-like bathroom featuring tiled shower walls and high-end finishes. The open-concept living area is bathed in natural light from expansive water-facing windows, seamlessly blending indoor and outdoor spaces. A spacious kitchen with a pantry offers water views and is outfitted with Whirlpool appliances, quartz countertops, and LVP flooring throughout for a stylish, low-maintenance finish. Step outside onto the expansive Trex deck, perfect for entertaining, with easy access from the kitchen for grilling and outdoor dining. A screened-in porch area provides a comfortable space to relax while taking in the stunning water views. The walk-out lower level features two additional bedrooms and a large recreation room, ideal for guests or a private retreat. A two-car garage with a bump-out ensures ample storage for vehicles and outdoor gear. Located just over an hour from Chicago, Heritage Harbor is a master-planned marina resort community in the heart of Starved Rock Country. This vibrant destination offers boating, waterfront dining, scenic walking trails, and a welcoming neighborhood designed for an active, resort-style lifestyle. Don't miss this opportunity to own a stunning waterfront home in one of Illinois' premier communities!

Read More » Read Less »

Baird & Warner Jeffrey Schwartz Email

Mortgage Calculator

%
years/fixed
yearly
yearly (est.)
yearly
(Payments are an estimate and may vary by lender)

Estimated Payment

$ 2,089.65 per month $1,664.44 Principal & Interest $1.75 Property Tax $218.46 Homeowner's Insurance $205 HOA Fee
Get your competitive financing options.

Property Details

Property Type: Residential - Single Family
Basement: Finished, Full, Walk-Out Access
Basement: Yes
Cooling: Central Air
Garage: 2
Heating: Natural Gas
Lot Size: 48X92X21X28X100
Roof Type: Asphalt
Taxes: $21
Year Built: 2025

Feature Descriptions

Additional rooms: No additional rooms
Association Includes: Clubhouse, Exercise Facilities, Pool, Other
Exterior: Fiber Cement
HOA Fee: 205/ Monthly
Lot: Views, Sloped
Lot Dimensions: 48X92X21X28X100
Parcel#: 1544300041
Parking: Garage Door Opener, Yes, Garage Owned, Attached, Garage
Sewer: Public Sewer
Total Rooms: 7
Township: Rutland
Water: Public

Room Information

Bedroom 2: 12X12
Bedroom 3: 12X14
Dining Room: 12X16
Family Room: 14X26
Kitchen: 10X14
Laundry: 6X8
Living Room: 14X16
Primary Bedroom: 13X13

Schools

High School: Ottawa Township High School
Middle School: Rutland Elementary School
Elementary School: Rutland Elementary School
School District: District 140

Disclaimer: The accuracy of all information regardless of source, including but not limited to square footage and lot size, is deemed reliable but not guaranteed nor warranted and should be personally verified through personal inspection by and/or with the appropriate professionals.

Location

See details and scored characteristics about this location.

Listing Office: Heritage Select Realty

Listing Office Phone: 815-433-5000



Listing data and photos distributed by MLSGRID
Member Participants (and their affiliated licensees, if applicable) shall indicate on their websites that IDX information is provided exclusively for consumers’ personal non-commercial use, that it may not be used for any purpose other than to identify prospective properties consumers may be interested in purchasing, that the data is deemed reliable but is not guaranteed by MLS GRID, and that the use of the MLS GRID Data may be subject to an end user license agreement prescribed by the Member Participant’s applicable MLS if any and as amended from time to time. MLS GRID may, at its discretion, require use of other disclaimers as necessary to protect Member Participant, and/or their MLS from liability.
Based on information submitted to the MLS GRID. All data is obtained from various sources and may not have been verified by broker or MLS GRID. Supplied Open House Information is subject to change without notice. All information should be independently reviewed and verified for accuracy. Properties may or may not be listed by the office/agent presenting the information.


Login to my Baird & Warner account

Pixel